Здравствуйте, уважаемые участники форума
В настоящее время делаю ремонт в квартире. Возник непростой вопрос с расстановкой 5.1 и акустикой помещения.
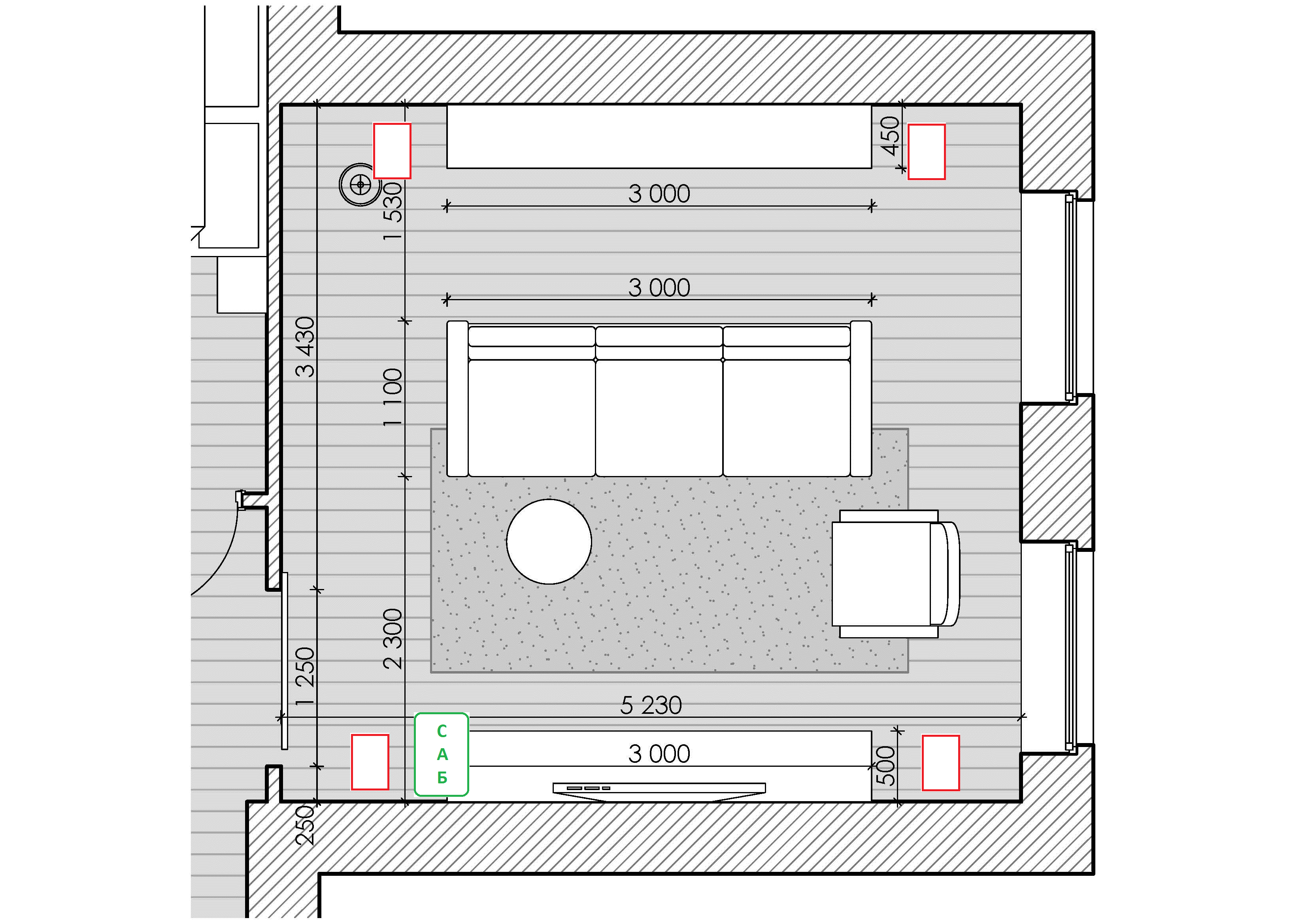
Планирую поставить два фронта по бокам от телевизора, центр на закрытую стойку для техники, тылы по бокам от навесной модульной системы. Фронты и тылы будут повернуты к центру дивана. Саб хочу поставить между фронтальной колонкой, ближайшей ко входу в гостиную, и стойкой аппаратуры. Чтобы встал саб, стойку буду делать меньше, чем на плане.
Планирую не только смотреть кино, но и слушать музыку.
Планируемая отделка: пол - ламинат, на полу коврик, как на рисунке. Боковые стены - покраска. Стена, на которой телевизор, гипсо-картон. Противоположная стена - панели МДФ с рельефом с навесной модульной системой. Потолок - гипсокартон. На окнах плотный текстиль.
Прошу указать на ошибки и дать рекомендации по расстановке акустики и акустической обработке помещения(доп. шумоизоляция и т.д.)
Буду признателен всем, кто откликнется
В настоящее время делаю ремонт в квартире. Возник непростой вопрос с расстановкой 5.1 и акустикой помещения.
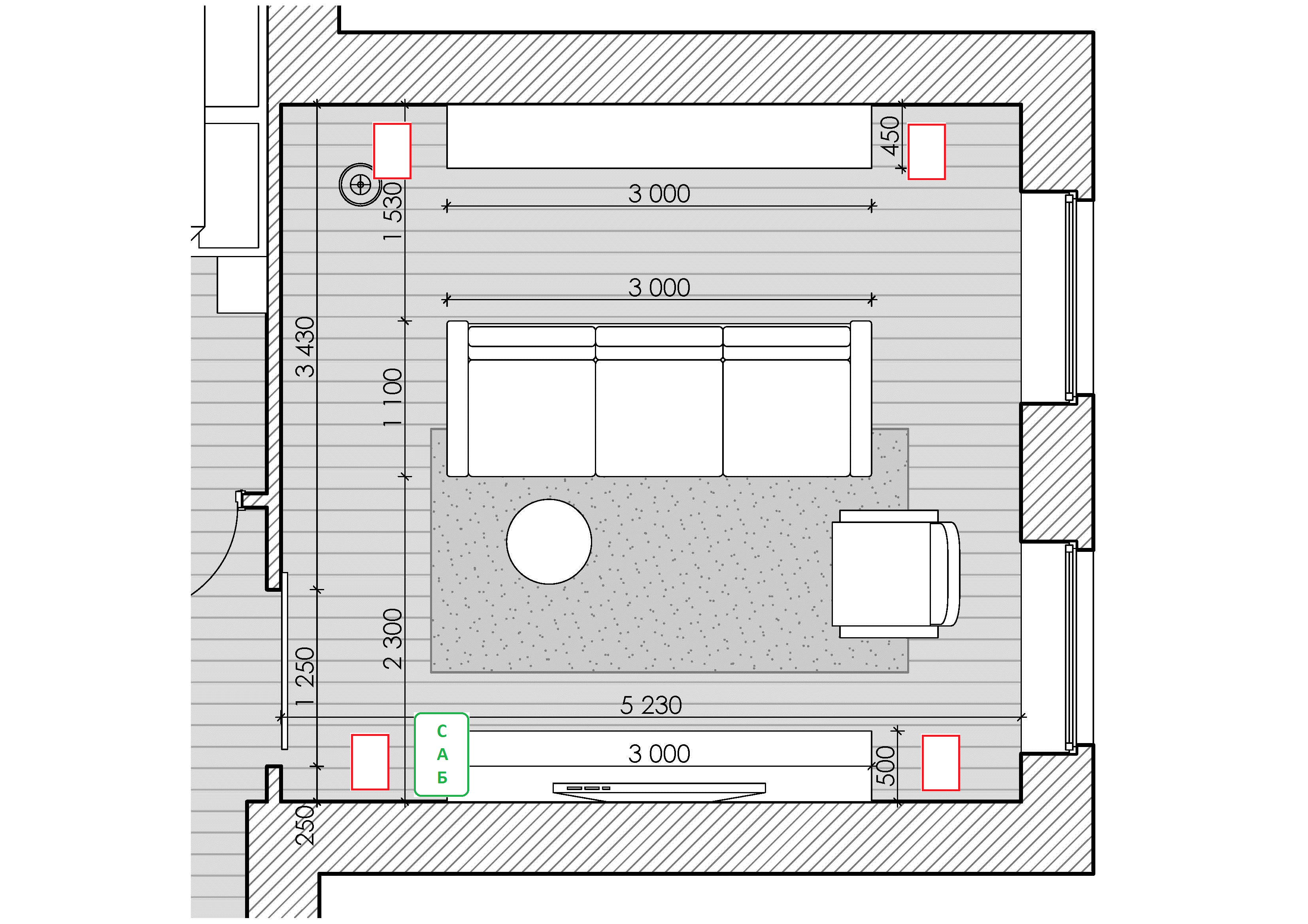
Планирую поставить два фронта по бокам от телевизора, центр на закрытую стойку для техники, тылы по бокам от навесной модульной системы. Фронты и тылы будут повернуты к центру дивана. Саб хочу поставить между фронтальной колонкой, ближайшей ко входу в гостиную, и стойкой аппаратуры. Чтобы встал саб, стойку буду делать меньше, чем на плане.
Планирую не только смотреть кино, но и слушать музыку.
Планируемая отделка: пол - ламинат, на полу коврик, как на рисунке. Боковые стены - покраска. Стена, на которой телевизор, гипсо-картон. Противоположная стена - панели МДФ с рельефом с навесной модульной системой. Потолок - гипсокартон. На окнах плотный текстиль.
Прошу указать на ошибки и дать рекомендации по расстановке акустики и акустической обработке помещения(доп. шумоизоляция и т.д.)
Буду признателен всем, кто откликнется
