Я бы для начала определился с типом оборудования, которое Вы планируете устанавливать. Первое, как мне кажется, надо отказаться от фронтальных и центральной отдельностоящих колонок в пользу встраиваемых. В данном случае отдельно-стоящая акустика никакими преимуществами против встраиваемой обладать не будет, а пространство лишнее занимает. Что касается типа встраиваемой акустики. Понять, что Вам предпочтительнее - полновстраиваемые АС или плоские АС "накладного" типа (на кронштейнах). Я бы "не парился" и поставил бы полновстраиваемые. Таких полно на рынке. Например, Клипш. Всё в одном форм-факторе, но с различным акустическим дизайном - фронт, центр, тыл, боковые. В Вашем случае боковая акустика не может быть размещена по бокам от дивана. Так как попросту справа её не куда встраивать. Тогда можно сделать либо 4 тыла либо - но это приведёт к необходимости выполнения пилона справа от дивана - сделать действительно "бока". Подразумеваем (и это, с учётом сложности акустики помещения) необходимость двух сабов. Вот и получается у Вас система 7.2. Если уж совсем хотите разгуляться и лишние штуку-полторы не жалко - ставьте 4 тыла, картинка будет яснее. Получится 9.2. Лучше не бывает. В потолок никакую подзвучку встраивать не советую.
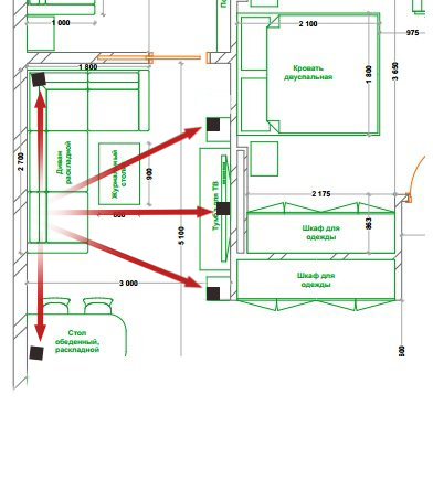
Что до акустических розеток. По моему опыту. Бессмысленная и неудобная затея. Лучше выпустить достаточной длины "хвосты", чтобы доставали провода до ресивера. Получится размещение под ТВ-панелью на тумбе - ресивер и плеер. Слева и справа - сабы. Вся акустика - встроена в стены. Не забудьте про розетки 220В в местах размещения сабов и под панелью в достаточном количестве. Также и ТВ-антенную, интернет, и для спутникового ресивера розетки под ТВ. С точки зрения удобства - либо тумба на колёсах, либо розетки сместить влево, в сторону гостевой комнаты, они и не заметны будут, и удобны к доступу (не за тумбой). Расположение акустики в плане. Надо сделать максимально равномерно, расположив их по мысленному овалу или окружности. Расположение акустики по высоте. Геометрический центр АС на 30-40 см выше Вашей макушки, когда Вы сидите в диване. Всё остальное откалибруется ресивером. Провода для закладки в стену - купите например недорогие Черновские или хорошие электрические НЕ одножильные, медные, сечением 2,5 - 4,0 мм.кв. Поскольку ТВ, ресивер и плеер у Вас рядом, то особо "париться" насчёт hdmi не приходится, обычные открытые провода будут.
Что до акустических розеток. По моему опыту. Бессмысленная и неудобная затея. Лучше выпустить достаточной длины "хвосты", чтобы доставали провода до ресивера. Получится размещение под ТВ-панелью на тумбе - ресивер и плеер. Слева и справа - сабы. Вся акустика - встроена в стены. Не забудьте про розетки 220В в местах размещения сабов и под панелью в достаточном количестве. Также и ТВ-антенную, интернет, и для спутникового ресивера розетки под ТВ. С точки зрения удобства - либо тумба на колёсах, либо розетки сместить влево, в сторону гостевой комнаты, они и не заметны будут, и удобны к доступу (не за тумбой). Расположение акустики в плане. Надо сделать максимально равномерно, расположив их по мысленному овалу или окружности. Расположение акустики по высоте. Геометрический центр АС на 30-40 см выше Вашей макушки, когда Вы сидите в диване. Всё остальное откалибруется ресивером. Провода для закладки в стену - купите например недорогие Черновские или хорошие электрические НЕ одножильные, медные, сечением 2,5 - 4,0 мм.кв. Поскольку ТВ, ресивер и плеер у Вас рядом, то особо "париться" насчёт hdmi не приходится, обычные открытые провода будут.
